Nádražní 612/36, jednotka č. 612/903 - kavárna - 51,12 m²

51,12 m2

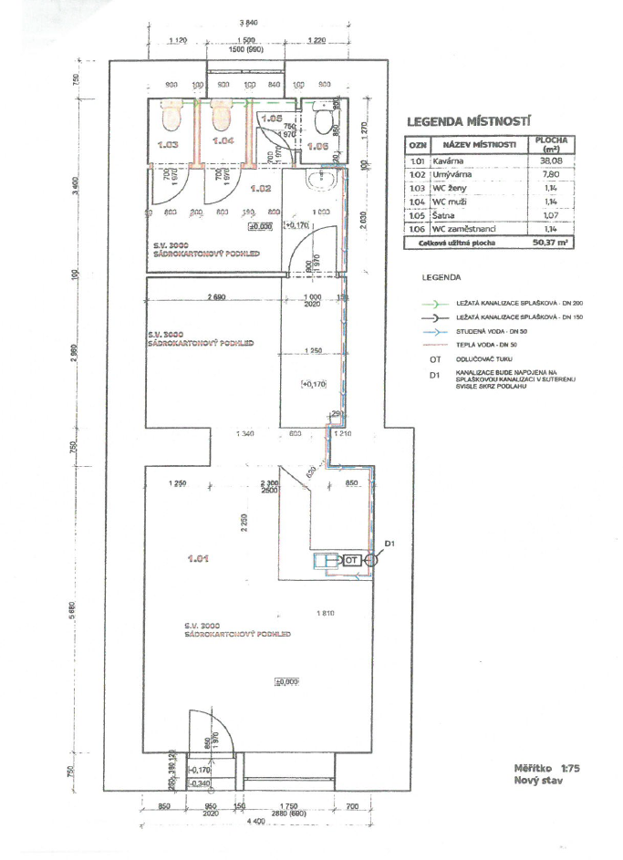
Popis

Termín pro příjem žádostí 26. 3. 2026 do 14 hodin

Zobrazit nemovitosti na mapě
Kontaktní osoba:
Bc. Martina Voláková

Popis

Popis

Informujeme všechny zájemce o pronájem tohoto nebytového prostoru, že příjem žádostí o pronájem končí ve čtvrtek 26. března 2026 ve 14 hodin.

Žádosti o pronájem budou předloženy Radě městského obvodu Moravská Ostrava a Přívoz nejdříve na zasedání dne 20. dubna 2026.

Nebytový prostor k pronájmu na ulici Nádražní 612/36 o velikosti 51,12 m².

 

Technický popis

Technický popis
Lokalita:
Moravská Ostrava
Stav:
Volný k pronájmu
Výměra:
51,12 m2
Typ nemovitosti:
nebytový prostor
Typ transakce:
pronájem
Obec:
Ostrava
Ulice a č.p./č.o.:
Nádražní 612/36
Podlaží:
1. nadzemní podlaží
Výměra:
51,12 m²
Způsob využití:
kavárna
Typ konstrukce:
cihlová
Stav nemovitosti:
dobrý
Typ vytápění:
lokální elektrické
Záloha na studenou vodu (Kč/měsíc):
1000,-
Záloha na čištění/údržbu komínu (Kč/měsíc):
15,-
Záloha na osvětlení společných prostor (Kč/měsíc):
40,-
Záloha na úklidové služby (Kč/měsíc):
100,-
Pronájem vybavení nebytového prostoru (Kč/měsíc):
5,-
Inženýrské sítě - voda:
ano
Inženýrské sítě - kanalizace:
ano
Inženýrské sítě - elektřina:
ano

Poznámka:

Uvedené zálohy jsou orientační a jsou stanovené dle spotřeby posledního uživatele nebytového prostoru.

Dokumenty a formuláře

Dokumenty a formuláře

Všechna práva vyhrazena - použití obsahu nebo jeho částí je možné se souhlasem
Úřadu městského obvodu Moravská Ostrava a Přívoz

Developed by: web-evolution.cz