Na Jízdárně 2895/18 - kancelář - 33 m²

33 m2

Popis

Připravujeme

Zobrazit nemovitosti na mapě
Kontaktní osoba:
Bc. Martina Voláková

Popis

Popis

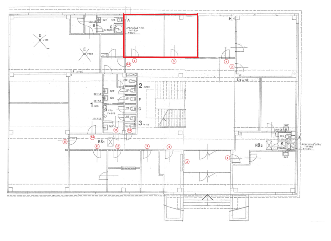
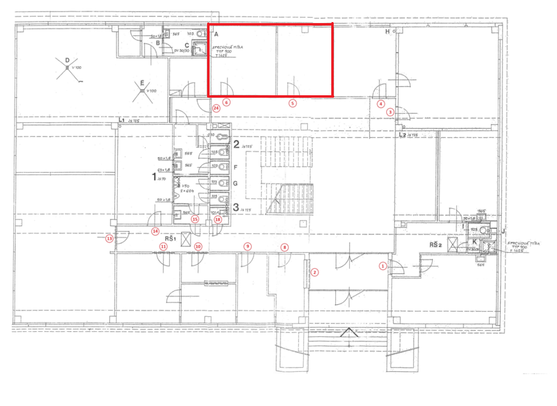
Nabízíme k pronájmu kancelář v domě na ul. Na Jízdárně 2895/18 o velikosti 33 m² (místnost č. 5, 6).

Společné prostory jsou po částečné rekonstrukci. Společné toalety jsou na chodbě objektu.

Fotky budou k dispozici po předání prostoru.

Technický popis

Technický popis
Lokalita:
Moravská Ostrava
Stav:
Připravujeme
Výměra:
33 m2
Typ nemovitosti:
nebytový prostor
Typ transakce:
pronájem
Obec:
Ostrava
Ulice a č.p./č.o.:
Na Jízdárně 2895/18
Podlaží:
1. nadzemní podlaží
Výměra:
33 m²
Způsob využití:
kancelář
Typ konstrukce:
panel
Stav nemovitosti:
dobrý
Počet pater celkem:
1. nadzemní podlaží
Typ vytápění:
dálkové
Záloha na dodávané teplo (Kč/měsíc):
1600,-
Záloha na teplou vodu (Kč/měsíc):
350,-
Záloha na studenou vodu (Kč/měsíc):
250,-
Záloha na osvětlení společných prostor (Kč/měsíc):
35,-
Záloha na úklidové služby (Kč/měsíc):
220,-
Pronájem vybavení nebytového prostoru (Kč/měsíc):
10,-
Výtah:
ne
Inženýrské sítě - voda:
ano
Inženýrské sítě - kanalizace:
ano
Inženýrské sítě - elektřina:
ano

Poznámka:

Uvedené zálohy jsou orientační a jsou stanovené dle spotřeby posledního uživatele nebytového prostoru.

Dokumenty a formuláře

Dokumenty a formuláře

Všechna práva vyhrazena - použití obsahu nebo jeho částí je možné se souhlasem
Úřadu městského obvodu Moravská Ostrava a Přívoz

Developed by: web-evolution.cz