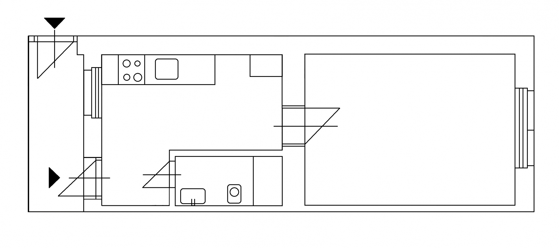
Poštovní 345/23, byt č. 4, velikost 1+1 - 39,85 m²

Popis

Krásný byt po opravách s přístupem přes pavlač v domě v centru Ostravy

Zobrazit nemovitosti na mapě
Kontaktní osoba:
Petra Ryboňová

Technický popis

Technický popis
Stav:
Volný k pronájmu
Termín uzávěrky licitačního řízení:
10. prosince 2025
Termín licitace:
11. prosince 2025 v 10.00 hodin (zasedací místnost č. 446)
Typ transakce:
pronájem
Typ nemovitosti:
byt
Velikost bytu:
1+1
Obec:
Ostrava
Lokalita:
Centrum
Ulice a č.p./č.o.:
Poštovní 345/23
Číslo bytu:
4
Výměra (m2):
39,85
Minimální cena (Kč/m2/měsíc):
170,-
Pronájem vybavení bytu (Kč/měsíc):
1 610,-
Záloha na studenou vodu (Kč/osoba/měsíc):
400,-
Záloha na osvětlení společných prostor (Kč/osoba/měsíc):
80,-
Záloha na čištění/údržbu komínu (Kč/měsíc):
45,-
Záloha na úklidové služby (Kč/měsíc):
120,-
Maximální počet osob v bytě:
3
Typ konstrukce:
cihlová
Stav nemovitosti:
po komplexní opravě
Podlaží:
2. nadzemní
Kuchyňská linka:
ano
Sporák:
elektrická vestavná trouba
Varná deska:
plynová
Typ vytápění:
plynový kotel
Ohřev vody:
plynový kotel
Pavlač:
ano
Sklep:
ano
Výtah:
ne

Poznámka:

Uvedené zálohy jsou výchozí, orientační a jsou stanovené dle spotřeby uživatele bytu a spotřeby energií za celý dům. 

Vzhledem k proběhlým opravám v tomto bytě není možná jakákoli změna či úprava.

Dokumenty a formuláře

Dokumenty a formuláře

Všechna práva vyhrazena - použití obsahu nebo jeho částí je možné se souhlasem
Úřadu městského obvodu Moravská Ostrava a Přívoz

Developed by: web-evolution.cz