Střední 1901/4, jednotka č. 1901/903 - kosmetika, prodejna - 78,39 m²

78,39 m2

Popis

Termín pro příjem žádostí 23. 4. 2026 do 14 hodin

Zobrazit nemovitosti na mapě
Kontaktní osoba:
Bc. Martina Voláková

Popis

Popis

Informujeme všechny zájemce o pronájem tohoto nebytového prostoru, že příjem žádostí o pronájem končí ve čtvrtek 23. dubna 2026 ve 14 hodin.

Žádosti o pronájem budou předloženy Radě městského obvodu Moravská Ostrava a Přívoz nejdříve na zasedání dne 4. května 2026.

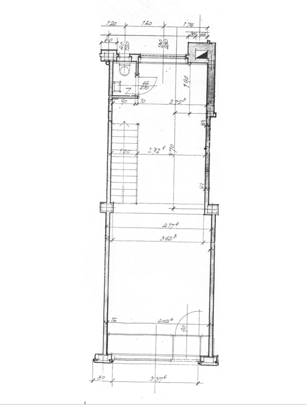
Nabízíme k pronájmu nebytový prostor na ulici Střední 1901/4 o velikosti 78,39 m².

Nachází se v blízkosti tramvajové zastávky Karolina.

 

Technický popis

Technický popis
Lokalita:
Moravská Ostrava
Stav:
Volný k pronájmu
Výměra:
78,39 m2
Typ nemovitosti:
nebytový prostor
Typ transakce:
pronájem
Obec:
Ostrava
Ulice a č.p./č.o.:
Střední 1901/4
Podlaží:
1. podzemní a 1. nadzemní podlaží
Způsob využití:
prodejna
Typ vytápění:
dálkové
Záloha na dodávané teplo (Kč/měsíc):
2300,-
Záloha na teplou vodu (Kč/měsíc):
200,-
Záloha na studenou vodu (Kč/měsíc):
350,-
Pronájem vybavení nebytového prostoru (Kč/měsíc):
10,-
Inženýrské sítě - voda:
ano
Inženýrské sítě - kanalizace:
ano
Inženýrské sítě - elektřina:
ano

Poznámka:

Uvedené zálohy jsou orientační a jsou stanovené dle spotřeby posledního uživatele nebytového prostoru.

Dokumenty a formuláře

Dokumenty a formuláře

Všechna práva vyhrazena - použití obsahu nebo jeho částí je možné se souhlasem
Úřadu městského obvodu Moravská Ostrava a Přívoz

Developed by: web-evolution.cz